Торговые площади
Кирова проспект, 210 Показать на карте
Кирова проспект, 210 Показать на карте
Промышленный район, 8-й микрорайон
Самара
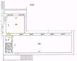
Арт. 129217734 Сдаётся в аренду торговая площадь на первой линии проспекта Кирова.Объект находится в центре густозаселённого жилого района с развитой инфраструктурой и высоким пешеходным потоком. Здесь располагаются остановки городского транспорта, крупные транспортные магистрали, обеспечивающие удобную доступность и повышенную проходимость.Окружение объекта включает большое количество коммерческих предприятий, среди которых центр обслуживания газоснабжающей организации, отделение Сбербанка и другие привлекательные объекты, способствующие привлечению клиентов.Внутренняя планировка представляет собой большой торговый зал с высотой потолков 4 метра и большими витражными окнами, выходящими непосредственно на улицу. В помещение имеется отдельный вход электроэнергии, а также возможность организации мокрой точки и вытяжки.Объект прекрасно подойдет под любые направления торговой деятельности, а также общепит и многое другое.Возможно рассмотреть увеличение арендуемой площади.
130 м2
- Показать контакты
- Добавить в избранное
130 м2
130 000 /мес.
1 000 /м2
