Универсальное помещение
Стара Загора, 142 Показать на карте
Стара Загора, 142 Показать на карте
Кировский район, 13-й микрорайон
Самара
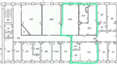
Аренда помещения свободного назначения расположенное по ул. Ст. Загора, рядом с Вкусно иТочка с высоким автомобильным и пешеходным трафиком.- Первая линия.-Общая площадь 224 м. кв,- сдается часть 150 м.кв.- со своим входом.- отдельный вход.( всего- 3 входа.)- Парковка перед зданием- Доступ 24/7- Вода холодная горячая, центральные коммуникации.- Свой санузел - 2 шт. Центральное отопление.- Вентиляция приточная.- Пожарная, охранная сигнализация.- Разрешенная мощность 15 КВт- На полу плитка, гомогенное покрытие, потолок Армстронг, стены под покраску.- Высота потолков 2,7 мАренда + к/у.По всем вопросам можете обращаться к представителю собственника: Елена Т.Елена Т.Добавьте это объявление в ''избранное'' - чтобы не потерять.
150 м2
- Показать контакты
- Добавить в избранное
150 м2
135 000 /мес.
900 /м2
