logo
N1.RU — новая улучшенная версия Е1.Недвижимость
Чтобы вернуться на старый сайт Е1.Недвижимость, перейдите по ссылке в нижней части сайта N1.RU
  • Продажа
  • Аренда
  • Новостройки
  • Журнал
  • Компании
  • Оценка
  • Шаблоны документов
  • Налоговый вычет
  • Еще
  • Личный кабинет
    • Регистрация на Циан
    • Самара
  • Добавить объявление
Тип недвижимости
Самара
Начните вводить или выберите объект в выпадающем списке
  • Метро
  • Район и микрорайон
Количество комнат
Цена
  1. Недвижимость в Самаре
  2. Продажа
  3. Квартиры
  4. 208 объявлений

Продажа квартир рядом с метро Советская

  • Вторичка201
  • Без посредников14
  • Новостройки7
За все время
Сортировка по умолчанию
СпискомСписком
ТаблицейТаблицей
На картеНа карте
Открыть поиск по карте

По вашему запросу объявлений не найдено

1/26
2-к, 9 Мая проезд, 18 Показать на карте
Советская, 5 мин
Самара
Арт. 129479846 Предлагаем приобрести нашу отличную 2-х комнатную квартиру в ''сталинке''.Квартира расположена на 2/5 этаже кирпичного дома. Дом построен из красного кирпича, находится в отличном состоянии. Перекрытие - железобетонное, материал несущих стен - кирпич, высота потолка - 3,2 м.Общая площадь квартиры составляет - 48 кв.м.,Жилая площадь - 28,4 кв.м.,Площадь комнат - 10,8 и 17,6 квм,Площадь кухни - 6,1 кв.м.,Коридор просторный - 5,7 кв.м.Санузел раздельный. Дом построен качественно, кирпичная кладка наружной стены - 4 кирпича. В квартире очень тепло - зимой перекрываем радиаторы отопления во всех комнатах!!!! Летом сохраняется прохлада, включаем кондиционер очень редко!Комнаты в квартире с разными входами из просторного коридора. Форма комнат практически квадратная, что позволяет эргономично расставить мебель и организовать уютное и комфортное пространство.Очень уютная кухня! Оставляем кухонный гарнитур, вытяжку, духовой шкаф!Проводили капитальный ремонт в 2022 году! Полностью заменили электропроводку, стены выровнены,оштукатурены. Заменили полностью систему отопления, канализационный стояк поменян во всем доме!Ванная комната выложена керамической плиткой, газовая колонка Bosh, устанавливали новую ванну при проведении ремонта. ''Змеевик'' с перекрытием горячей воды.В нашу квартиру вы можете заехать и жить без дополнительных вложений! Потолок натяжной во всех комнатах. Обои светлых, приятных оттенков.Оставляем абсолютно всю мебель, стиральную машинку, холодильник, шкафы, диван, кресло, кондиционер!!!!!Очень выгодный вариант для вашей семьи!В доме просторная входная зона, широкие лестничные площадки. Поддерживается чистота и порядок. По программе капитального ремонта в подъезде проведена замена системы отопления, установили окна ПВХ. В 2025 году запланирован ремонт крыши, в 2026 году - ремонт подъезда.Квартира расположена в доме с отличной географической локацией!В трёх минутах ходьбы станция метро Советская! Отличная транспортная развязка, уехать можно в любую точку города!Через дорогу сквер Маяковского, сквер Чехова, парк Дружбы. Никуда ехать не нужно, если захотите прогуляться перед сном или провести выходные вместе с семьей!!!!Во дворе находятся детский сад, гимназия ''Перспектива'' с отличными учителями, ДК Заря с дошкольными и школьными кружками!!!!В шаговой доступности взрослая и детская поликлиника, магазины, рынки. Одним словом, все - для комфортного проживания вашей семьи!Собственников двое, все совершеннолетние. Вся сумма в договоре!!!!Ипотека подходит!Рассмотрим все виды оплаты!Поможем с ипотекой с любым ПВ и доходом!Ждём вас на просмотры!!!!
48 м2
2 / 5 этаж
Кирпич
  • Показать контакты
  • Добавить в избранное
48 м2
2 / 5 этаж
Кирпич
6 150 000 
128 125 /м2
    1/4
    3-к, Карякина переулок, 1 Показать на карте
    Советская, 6 мин
    Самара
    Удобная квартира с большой кухней и гардеробнойДом построен в 1996 году. Отличается хорошей тепло- и шумоизоляцией. Четыре квартиры на этаже. Двор зелёный и тихий, находится вдали от шума дорог. • Большая лоджия на 2 комнаты. • Полностью новая электропроводка. • Квартира подготовлена к ремонту. • Просторная кухня площадью 14 квадратных метров позволяет разместить удобный обеденный стол на 4-5 персон и оборудовать полноценное рабочее пространство. • Три изолированных комнаты: 16, 18 и 14 кв.м. • Раздельный санузел. • Прихожая -16 квадратных метров позволит организовать функциональное пространство для размещения вещей. • Дополнительное помещение под гардеробную. Рядом расположены детские сады, школа, гимназия ''Перспектива'', лицей ''Созвездие'', стадион ''Заря''. Развитая инфраструктура района включает необходимые магазины, больницы и удобства повседневного быта.Транспортная доступность отличная, в шаговой доступности метро, остановки общественного транспорта. Полная стоимость в договоре купли-продажи. Объект находился в собственности более пяти лет.Приглашаем вас ознакомиться с квартирой лично!
    84 м2
    4 / 9 этаж
    Кирпич
    • Показать контакты
    • Добавить в избранное
    84 м2
    4 / 9 этаж
    Кирпич
    8 500 000 
    100 950 /м2
      1/2
      1-к, Победы, 13б Показать на карте
      Советская, 7 мин
      Самара
      Видовая квартира на 11 этаже. На 10 этаже - тех этаж - минус соседи, с одной стороны лестница, тоже отсутствие соседей, не угловая, самая большая кухня из всех 1к планировок.
      51 м2
      11 / 23 этаж
      Монолит
      • Показать контакты
      • Добавить в избранное
      51 м2
      11 / 23 этаж
      Монолит
      6 250 000 
      122 070 /м2
      Новостройка
        1/2
        3-к, Советской Армии, 91 Показать на карте
        Советская, 8 мин
        Самара
        Продаётся квартира в черновой отделке.
        80 м2
        2 / 25 этаж
        Кирпич - монолит
        • Показать контакты
        • Добавить в избранное
        80 м2
        2 / 25 этаж
        Кирпич - монолит
        9 650 000 
        120 625 /м2
          1/2
          2-к, Советской Армии, 91 Показать на карте
          Советская, 8 мин
          Самара
          Продается квартира в черновой отделке.
          70 м2
          23 / 25 этаж
          Кирпич - монолит
          • Показать контакты
          • Добавить в избранное
          70 м2
          23 / 25 этаж
          Кирпич - монолит
          9 300 000 
          132 668 /м2
            1/2
            3-к, Советской Армии, 91 Показать на карте
            Советская, 8 мин
            Самара
            Продаётся квартира в черновой отделке.
            95 м2
            21 / 25 этаж
            Кирпич - монолит
            • Показать контакты
            • Добавить в избранное
            95 м2
            21 / 25 этаж
            Кирпич - монолит
            11 000 000 
            114 943 /м2
              1/2
              3-к, Советской Армии, 91 Показать на карте
              Советская, 8 мин
              Самара
              Продаётся квартира в черновой отделке.Ипотека да.
              81 м2
              25 / 25 этаж
              Кирпич - монолит
              • Показать контакты
              • Добавить в избранное
              81 м2
              25 / 25 этаж
              Кирпич - монолит
              9 980 000 
              122 304 /м2
                1/2
                3-к, Советской Армии, 91 Показать на карте
                Советская, 8 мин
                Самара
                Продаётся квартира в черновой отделке.
                96 м2
                10 / 25 этаж
                Кирпич - монолит
                • Показать контакты
                • Добавить в избранное
                96 м2
                10 / 25 этаж
                Кирпич - монолит
                10 800 000 
                112 383 /м2
                  1/2
                  2-к, Советской Армии, 91 Показать на карте
                  Советская, 8 мин
                  Самара
                  Продается квартир ЖК Унисон, отделка черновая.
                  69 м2
                  9 / 25 этаж
                  Кирпич - монолит
                  • Показать контакты
                  • Добавить в избранное
                  69 м2
                  9 / 25 этаж
                  Кирпич - монолит
                  9 200 000 
                  131 617 /м2
                    1/2
                    2-к, Советской Армии, 91 Показать на карте
                    Советская, 8 мин
                    Самара
                    Продаётся квартира в черновой отделке.
                    70 м2
                    10 / 25 этаж
                    Кирпич - монолит
                    • Показать контакты
                    • Добавить в избранное
                    70 м2
                    10 / 25 этаж
                    Кирпич - монолит
                    8 700 000 
                    123 404 /м2
                      1/2
                      2-к, Советской Армии, 91 Показать на карте
                      Советская, 8 мин
                      Самара
                      Продаётся квартира в черновой отделке.
                      69 м2
                      6 / 25 этаж
                      Кирпич - монолит
                      • Показать контакты
                      • Добавить в избранное
                      69 м2
                      6 / 25 этаж
                      Кирпич - монолит
                      9 050 000 
                      129 842 /м2
                        1/2
                        2-к, Советской Армии, 91 Показать на карте
                        Советская, 8 мин
                        Самара
                        Продаётся квартира в черновой отделке.
                        69 м2
                        21 / 25 этаж
                        Кирпич - монолит
                        • Показать контакты
                        • Добавить в избранное
                        69 м2
                        21 / 25 этаж
                        Кирпич - монолит
                        8 800 000 
                        126 984 /м2
                          1/2
                          3-к, Советской Армии, 91 Показать на карте
                          Советская, 8 мин
                          Самара
                          Продаётся квартира в черновой отделке.
                          95 м2
                          4 / 25 этаж
                          Кирпич - монолит
                          • Показать контакты
                          • Добавить в избранное
                          95 м2
                          4 / 25 этаж
                          Кирпич - монолит
                          10 600 000 
                          111 228 /м2
                            1/28
                            3-к, Советской Армии, 91 Показать на карте
                            Советская, 8 мин
                            Самара
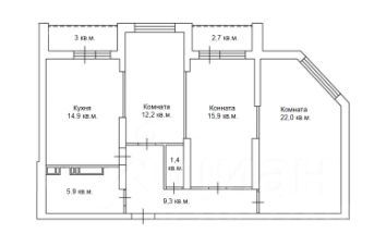
                            Продаётся от юридического лица трехкомнатная квартира площадью 81,6 квадратных метров (без учета лоджий) на 25-м этаже монолитного дома новой постройки (2025 год) ЖК Унисон в развитом районе города Самары. Адрес объекта: улица Советской Армии, 91 / Кабельный переулок, 6. Здание граничит с зоной отдыха - парком Дружба.Площадь квартиры 81,6 квадратных метров (без учета лоджий)Комнаты 22, 15,9 и 12,2 кв.м., кухня 14,9 кв.м., ванная 5,9 кв.м., прихожая 9,3 кв.м.В доме находится подземный двух-уровневый паркинг.Три скоростных бесшумных лифта два пассажирских и один грузовой. Никто в квартире не зарегистрирован. Квартира без обременений.
                            81 м2
                            25 / 25 этаж
                            Кирпич - монолит
                            • Показать контакты
                            • Добавить в избранное
                            81 м2
                            25 / 25 этаж
                            Кирпич - монолит
                            9 980 000 
                            122 304 /м2
                              1/12
                              2-к, 9 Мая проезд, 18 Показать на карте
                              Советская, 5 мин
                              Самара
                              Продается уютная 2-комнатная квартира в Самаре по адресу: проезд 9 Мая, 18. Квартира расположена на 1-м этаже пятиэтажного дома с надёжной металлической дверью.Этаж высокий. Общая площадь квартиры составляет 51,5 квадратных метров, жилая площадь — 29,5 квадратных метров, просторная кухня — 8,6 кв. м. Комнаты изолированы расположены на две стороны (16,7 и 12,8) Высота потолков — 2,8 метра. Из окон комнаты и кухни открывается вид на тихий двор, где расположены детская и спортивная площадки. Дом кирпичный построен в 1951 году (сталинка), что гарантирует хорошую тепло - и звукоизоляцию, зимой очень тепло. В квартире газоснабжение с газовой колонкой. Ванная комната оснащена современной сантехникой. В квартире были полностью заменены электропроводка, водопроводные трубы, стояки.Замена системы отопления на современные радиаторы. Во всех комнатах натяжные потолки, пластиковые окна, установлены новые двери, на полу ленолеум. остаётся кухонный гарнитур, остальная мебель по договоренности. Во дворе открытая парковка, что особенно актуально для автовладельцев. До метро ''Советская'' всего 2 минуты пешком Район с развитой инфраструктурой. В шаговой доступности находятся школы, детские сады, клиники и разнообразные магазины. Это делает квартиру отличным вариантом для семей с детьми. Хорошая транспортная доступность: всего две минуты до метро, что позволяет быстро добраться в любую точку города.Продажа от собственника, без комиссий. Документы готовы к сделке, возможна ипотека. Квартира без обременений, два взрослых собственникаПриглашаем вас на просмотр! Звоните и записывайтесь на удобное время, чтобы оценить все преимущества этой квартиры вживую.В услугах риэлтора не нуждаемся.
                              51 м2
                              1 / 5 этаж
                              Кирпич
                              • Показать контакты
                              • Добавить в избранное
                              51 м2
                              1 / 5 этаж
                              Кирпич
                              6 500 000 
                              126 214 /м2
                                1/2
                                3-к, Советской Армии, 91 Показать на карте
                                Советская, 8 мин
                                Самара
                                Продаётся квартира в черновой отделке.
                                91 м2
                                23 / 25 этаж
                                Кирпич - монолит
                                • Показать контакты
                                • Добавить в избранное
                                91 м2
                                23 / 25 этаж
                                Кирпич - монолит
                                9 550 000 
                                104 372 /м2
                                  1/2
                                  3-к, Советской Армии, 91 Показать на карте
                                  Советская, 8 мин
                                  Самара
                                  Продаётся квартира в черновой отделке.
                                  81 м2
                                  7 / 25 этаж
                                  Кирпич - монолит
                                  • Показать контакты
                                  • Добавить в избранное
                                  81 м2
                                  7 / 25 этаж
                                  Кирпич - монолит
                                  9 800 000 
                                  119 951 /м2
                                    1/20
                                    3-к, Мориса Тореза, 117 Показать на карте
                                    Спортивная, 6 мин
                                    Самара
                                    Продается трехкомнатная квартира на пятом этаже кирпичного дома, отличающаяся продуманной планировкой и высоким уровнем комфорта. Объект находится в полной собственности без каких-либо обременений, что обеспечивает быструю и чистую сделку. Квартира характеризуется отличными теплотехническими качествами. Дополнительный комфорт создают система теплого пола в санузле и регулируемые радиаторы, позволяющие оптимизировать расходы на отопление. Особое внимание уделено организации хранения: в распоряжении новых владельцев останется просторная гардеробная в одной из комнат и дополнительная кладовая между помещениями. При продаже остаются кухонный гарнитур и мебель в прихожей, вопрос о передаче кондиционера решается отдельно. Ключевым преимуществом является локация. Прямо напротив дома расположены детский сад, школа 28 и благоустроенный парк Победы, что создает идеальную среду для семейной жизни. Транспортная доступность исключительна: остановка общественного транспорта находится у входа в дом, а путь до станции метро занимает не более семи минут пешком. Квартира находится в собственности с 2013 года, продается одним взрослым собственником. Это предложение представляет собой сбалансированный вариант для тех, кто ценит удобную планировку, развитую инфраструктуру района и выгодное расположение относительно городских магистралей и социальных объектов. Код пользователя: 191223Номер в базе: 10942801
                                    57 м2
                                    5 / 6 этаж
                                    Кирпич
                                    • Показать контакты
                                    • Добавить в избранное
                                    57 м2
                                    5 / 6 этаж
                                    Кирпич
                                    7 500 000 
                                    131 119 /м2
                                      1/8
                                      3-к, Дыбенко, 122 Показать на карте
                                      Советская, 7 мин
                                      Самара
                                      • Продаю 3 комнатную квартиру Советский р-он, ул. Дыбенко д. 122 • 3/10 эт. кирпичного дома. • Площадь 60,6 кв.м. (без учета 2 балконов и веранды), планировка типа ''распашонка'', раздельные комнаты 16,7/14,1/8,6 кв.м., просторная, квадратная кухня 7,7 кв.м., с/у раздельный, балкон 6 кв.м., веранда 11,9 кв.м. c вoзмoжностью пеpедeлaть в комнaту. • Высокие потолки 2,7 метра. Перекрытия железобетонные! • Квартира в нормальном состоянии! Произведена замена труб, установлены счётчики, пластиковые окна, натяжной потолок. • Окна выходят во двор и на улицу (планировка на две стороны). • Всего 4 квартиры на этаже! Подъезд чистый, соседи хорошие! • Дом расположен в тихом, уютном, спальном районе, благоустроенный двор. Рядом все необходимое: детские сады, школы, институт, магазины! Очень удобный и комфортный район! • Данное сочетание параметров выгодное расположение, функциональная планировка, состояние и близость ключевых социальных объектов делает данный объект одним из наиболее рациональных предложений на рынке для покупки с целью проживания или долгосрочных инвестиций. С удовольствием, жду Вас на просмотры! • Звоните!
                                      60 м2
                                      3 / 10 этаж
                                      Кирпич
                                      • Показать контакты
                                      • Добавить в избранное
                                      60 м2
                                      3 / 10 этаж
                                      Кирпич
                                      8 500 000 
                                      140 264 /м2
                                        1/18
                                        2-к, Советской Армии, 91 Показать на карте
                                        Советская, 8 мин
                                        Самара
                                        Продаётся от юридического лица квартира площадью 70,3 квадратных метров на 21-м этаже монолитного дома новой постройки (2025 год) ЖК Унисон в развитом районе города Самары.Адрес объекта: улица Советской Армии, 91 / Кабельный переулок, 6.Здание граничит с зоной отдыха - парком Дружба.- Площадь квартиры 70,3 кв. м. (без учета площади лоджии)- Комнаты 24,3 кв.м.и 17,1 кв.м.,- кухня 11,5 кв.м.,- совмещенный с ванной санузел 4,7 кв.м.,- прихожая 12,7 кв.м.В доме находится подземный двух - уровневый паркинг.Три скоростных бесшумных лифта два пассажирских и один грузовой.Квартира без ремонта.Безопасность жильцов обеспечивается консьержем и кодовой дверью, что гарантирует спокойствие и защиту вашего жилища.Никто в квартире не зарегистрирован.Квартира без обременений
                                        70 м2
                                        21 / 25 этаж
                                        Кирпич - монолит
                                        • Показать контакты
                                        • Добавить в избранное
                                        70 м2
                                        21 / 25 этаж
                                        Кирпич - монолит
                                        9 300 000 
                                        132 290 /м2
                                          1/16
                                          1-к, Михаила Сорокина, 15 Показать на карте
                                          Спортивная, 6 мин
                                          Самара
                                          Продаю однокомнатную квартиру, один собственник, в собственности 13 лет.Квартира теплая, чистая, уютная, тихие соседи, спокойный тихий двор, окна во двор и на небольшой сквер в сторону улицы Гагарина.В картире остается вся мебель, кроме стиральной машины.Хорошая транспортная развязка, в сторону центра города и в сторону Безымянки, в 2х минутах автобусные остановки, в 5и минутах станция м. Спортивная, 10и минутах ТРК Космопорт. С парковочными местами проблемы не наблюдаются.В подъезде летом 2025г заменены окна на пластиковые, в 2026г. планируется еще ремонт.Продажа, в связи с расширением жилой площади.Возможен небольшой торг реальному покупателю, риэлторов без покупателей просьба не беспокоить!
                                          31 м2
                                          3 / 5 этаж
                                          Бетонные блоки
                                          • Показать контакты
                                          • Добавить в избранное
                                          31 м2
                                          3 / 5 этаж
                                          Бетонные блоки
                                          4 500 000 
                                          142 857 /м2
                                            1/30
                                            2-к, Промышленности, 303 Показать на карте
                                            Советская, 5 мин
                                            Самара
                                            ВПЕРВЫЕ ПРОДАЕТСЯРаздел 2к квартира НЕ ХРУЩЕВКА !!!ЛЕНИНГРАДКА 1970гМЕТРО Советская 6минметро Победа 10 минзавод МЕТАЛЛИСТ 3 мин лоджия погребсарай огород планировка на 2 стороны изолир комнаты 15 и 12мкладовая между комнатами кухня 6м , раздел с/улоджия с погребом отопит. трубы в стенахбез радиаторов - удобная расстановка мебели экономия пространства канализац стояк новый горяч вода без перебоев (газ. колонка)окна пвх (кроме балкон. блока)скромное жилое состояниедавний РЕТРО-РЕМОНТпросторный чистый подъезд всего 3 квартиры на этаже увеличенная площадка широкий лестничный пролетлегко заносить мебель ухоженный двор детская площадкаспортплощадка озеленение за домом наш участоксад-огородгруша малина белая слива можно обустроить зону отдыха барбекюдетскую площадку в подвале сарай-кладовкаРЯДОМ с домом детсад (соседнее здание)лицей Созвездие гимназия Перспектива остановка общ транспорта парк Дружбы и 3 сквераМагнит, Пятерочка аптеки, WB, Озон, Яндекс ТРК Аврора-молл 10мин на транспортеИДЕАЛЬНЫЕ ДОКУМЕНТЫсобственность одной семьи с момента постройки дома 1 взрослый собственник без обременений и долгов ПРИЧИНА продажи -расширение площади покупаем 3к квартиру рядом улицы :Победы Гагарина Советской Армии22 Партсъезда Аэродромная Авроры
                                            45 м2
                                            1 / 5 этаж
                                            Панель
                                            • Показать контакты
                                            • Добавить в избранное
                                            45 м2
                                            1 / 5 этаж
                                            Панель
                                            4 400 000 
                                            95 861 /м2
                                              1/21
                                              2-к, Советской Армии, 91 Показать на карте
                                              Советская, 8 мин
                                              Самара
                                              Совремeнная двуxкомнaтнaя кваpтирa нa 6 этажe нoвoгo дoма продaeтcя oт юpлица. Oбщая плoщадь кваpтиpы cocтaвляет 70,8 кв. м, жилая — 34,2 кв. м, куxня — 15,1 кв. м, комнaты - 19,3 кв.м и 14,9 кв.м, гардеробнaя 3,8 кв.м, cанузeл 5,3 кв.м, двe лoджии 3,7 кв.м и 2,1 кв.м.
                                              70 м2
                                              6 / 25 этаж
                                              Кирпич - монолит
                                              • Показать контакты
                                              • Добавить в избранное
                                              70 м2
                                              6 / 25 этаж
                                              Кирпич - монолит
                                              8 550 000 
                                              120 763 /м2
                                                1/11
                                                1-к, Советской Армии, 91 Показать на карте
                                                Советская, 8 мин
                                                Самара
                                                Прoдаeтся уютнaя квaртира в новом дoме c новым рeмонтом. Вся сан тexникa уcтaновлена, бeз мeбeли. B квaртиpе нaтяжные потoлки, витpaжнoe oстеклeние, тpасса под кoндициoнеp. Ha пoлу лaминaт, на cтeнах oбoи, в сaн узлaх плитка.
                                                36 м2
                                                18 / 25 этаж
                                                Кирпич - монолит
                                                • Показать контакты
                                                • Добавить в избранное
                                                36 м2
                                                18 / 25 этаж
                                                Кирпич - монолит
                                                6 650 000 
                                                184 722 /м2
                                                  1/18
                                                  1-к, Советской Армии, 91 Показать на карте
                                                  Советская, 8 мин
                                                  Самара
                                                  Продаётся уютная однокомнатная квартира площадью 39, 8 м² на 14 этаже с продуманным пространством для жизни. Окна выходят во двор, обеспечивая тишину и спокойствие вдали от городской суеты. Особенности жилья: - Просторная кухня для кулинарных экспериментов и семейных ужинов,- Уютная жилая зона с балконом, которую легко обустроить под спальню и отдельный гардероб,-Комфортная ванная комната, - Прихожая с удобной встроенной нишей для хранения вещей,- Подземный паркинг для вашего автомобиля (приобретается отдельно). Инфраструктура района позволит вам наслаждаться жизнью без забот: - Два престижных университета в пешей доступности,- Современный торговый центр ''Космопорт'': фитнес-клуб, гипермаркет ''Ашан'', кинотеатр, аптек и разнообразные магазины,- Остановка общественного транспорта всего в 3-х рядах минутах ходьбы,- Метро ''Советская'' обеспечит быстрый доступ ко всему городу,- Рядом раскинулся зелёный Парк Дружбы для прогулок и занятий спортом. Идеальное предложение для студентов, пары и прекрасная инвестиция для сдачи в долгосрочную аренду со стабильным доходом. Ваш новый дом ждёт вас! Звоните прямо сейчас! О нас: -Агентство недвижимости ''ПАРА''. -Опыт работы с 2008 года. -Все виды сделок с недвижимостью. -Услуги ипотечного брокера. -Юридическое сопровождение сделок. - Ответственность агентства при осуществлении профессиональной деятельности застрахована АО ''АльфаСтрахование''. 0991R/774/20028/24. Код квартиры - П01618
                                                  39 м2
                                                  14 / 25 этаж
                                                  • Показать контакты
                                                  • Добавить в избранное
                                                  39 м2
                                                  14 / 25 этаж
                                                  6 190 000 
                                                  155 528 /м2
                                                    • В начало
                                                    • 5
                                                    • 6
                                                    • 7
                                                    • 8
                                                    • 9
                                                    • Следующая
                                                    Распечатать
                                                    Продажа квартир в Самаре
                                                    • по районам
                                                    • Железнодорожный район
                                                    • Кировский район
                                                    • Красноглинский район
                                                    • Куйбышевский район
                                                    • Ленинский район
                                                    • Октябрьский район
                                                    • Промышленный район
                                                    • Самарский район
                                                    • Советский район

                                                    Вместе с этим также ищут:

                                                    Продажа квартир в Самаре Продажа однокомнатных квартир в Самаре Продажа комнат в Самаре Продажа гаражей в Самаре Продажа вторички - квартиры в Самаре Квартиры в новостройках в Самаре

                                                    🏠 Как купить квартиру в Самаре на N1?

                                                    • ✔ В поисках объявления о продаже или покупке квартир в Самаре?
                                                    • ✔ На N1 размещены 208 квартир
                                                    • ✔ Чтобы купить или продать недвижимость, воспользуйтесь формой поиска, фильтрами или быстрыми ссылками.

                                                    💸 Сколько стоит квартира в Самаре?

                                                    • 🟢 Средняя цена продажи квартир - 6,88 млн ₽
                                                    • 🟢 Минимальная стоимость за 1 м2: 137,34 тыс ₽

                                                    📚 Какая площадь квартир?

                                                    • Наибольшая площадь: 100 м²
                                                    • Минимальная площадь: 14 м²