Продаётся от юридического лица трехкомнатная квартира площадью 81,6 квадратных метров (без учета лоджий) на 25-м этаже монолитного дома новой постройки (2025 год) ЖК Унисон в развитом районе города Самары.
Адрес объекта: улица Советской Армии, 91 / Кабельный переулок, 6. Здание граничит с зоной отдыха - парком Дружба.
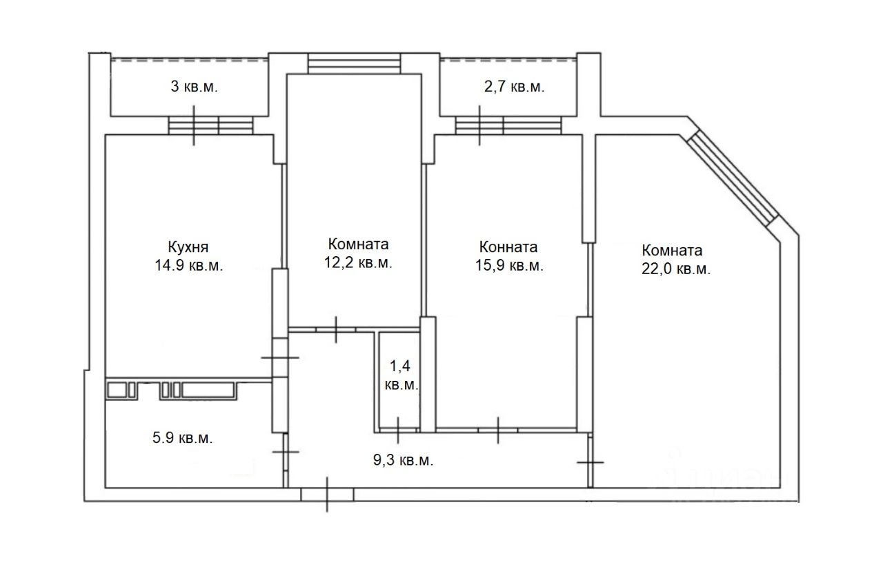
Площадь квартиры 81,6 квадратных метров (без учета лоджий)
Комнаты 22, 15,9 и 12,2 кв.м.,
кухня 14,9 кв.м.,
ванная 5,9 кв.м.,
прихожая 9,3 кв.м.
В доме находится подземный двух-уровневый паркинг.
Три скоростных бесшумных лифта два пассажирских и один грузовой.
Никто в квартире не зарегистрирован.
Квартира без обременений.




























