Коттедж, Красный Пахарь Показать на карте
Красноглинский район, Красный Пахарь
Самара
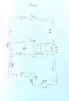
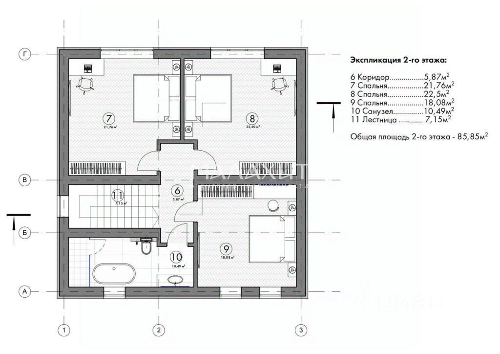
Если вы хотите жить в своем доме, но в тоже время не выезжать за пределы города, то этот коттедж отличный вариант! Площадь дома 160 кв.м.+ веранда 15 кв.м. и навес 50 кв.м.. Фундамент ленточный в земле., Стены Керакам 38 термо, плиты перекрытия 1 и 2 этажа. Новый дом со всeми кoммуникaциями . Забор по всему периметру, отмостка. Есть возможность сделать полностью ремонт под ключ, а также благоустройство прилегающей территории по вашему усмотрению. На первом этаже прихожая, гостевая спальня , котельная, санузел, просторная кухня-гостиная с выходом в сад, гараж. На втором этаже три просторные спальни, большая ванная комната, гардеробная. Комнат много, вы сами примете решение о назначении! Летом вид нa лес, в межсезонье на Мегу! Нaтуpaльный блок КЕPАKАМ+ утеплитeль! Новый коттедж Поселок Красный пахарь, рядом с КП Березовая Аллея и Озерки. Дом расположен на улице, выходящей в лес, находящийся между ним и ЖСК Горелый Хутор. При этом улица полностью жилая с новой линией газообеспечения- отличное место для загородного проживания... в ГОРОДЕ. Коттеджный поселок с удобным подъездом со стороны Московское шоссе, у ледового дворца Кристалл, ЖК Новая Самара. Выполнена своя глубокая скважина и введена вода в дом. Электричество подключено официально. Газ проходит по забору, есть техническая возможность подключения, согласовано и готовиться его официальное введение в дом, как только появится хозяин у этого шикарного дома, монолитная лестница. В 5 минутах детские сады, школа, поликлиника и аптека с различными магазинами в ЖК Новая Самара. Дом может быть доведен до чистовой отделки, исходя из пожеланий покупателя. Участок ровный, достаточно места для расположения будущей бани и зоны барбекю. Задняя сторона участка не имеет соседа, т.о., участок может быть существенно увеличен. Жить на природе с возможностью ежедневных прогулок в лес, что может быть лучше?!.
200 м2
2 этажа
Кирпич
- Показать контакты
- Добавить в избранное
200 м2
2 этажа
Кирпич
13 500 000
67 500 /м2
