Если цена в объявлении изменится, мы сразу сообщим вам об этом на электронную почту.
Нажимая «Подписаться», вы соглашаетесь с правилами.
продам коттедж, 9-я, 2913 990 000 ₽
25 июля
Дата публикации объявления
Обн. вчера
Дата обновления объявления
2
Количество просмотров (+ просмотры за сегодня)
93 267 ₽/м²
Чистая продажа
Термин "Чистая продажа" означает, что в квартире никто не прописан или
есть куда выписаться и вывезти вещи. Это лучший вариант для покупателя.
Вероятность срыва сделки минимальна.
Этажей2
Площадь участка6,19 соток
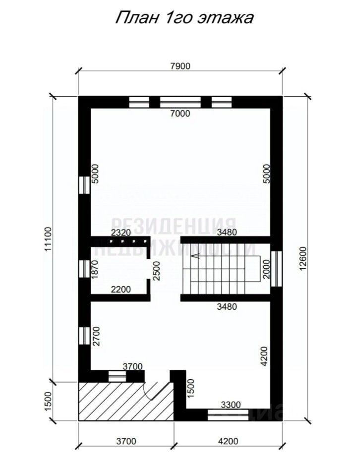
Общая площадь150 м2
Материал домакирпич
ЭлектричествоЕсть
Газоснабжениецентральное
Арт. 111713587 Продажа нового коттеджа с земельным участком в районе Супермаркета METRO на Московском шоссе по адресу: Красноглинский район, 19км, ул.9-я Уютное, спокойное место для отдыха и жизни.
Общая площадь коттеджа: 150 кв.м. Двухэтажный коттедж 2024 года постройки. Свободная планировка. Мокрые точки на каждом этаже. Большие витражные панорамные окна в кухне-гостиной.. Вода - скважина, канализация - септик и переливная яма, газ - газовый котел Вахi (Италия). Высота потолков первого этажа 3,25 м. Высота потолков второго этажа 2,15 м. Выделенная мощность 15 кВт. Стены: керакам, утеплитель, фасадная штукатурка. Крыша: мягкая кровля. Установлены автоматические ворота, калитка, парковка, отмостка.
Арт. 111713587 Продажа нового коттеджа с земельным участком в районе Супермаркета METRO на Московском шоссе по адресу: Красноглинский район, 19км, ул.9-я Уютное, спокойное место для отдыха и жизни.
Общая площадь коттеджа: 150 кв.м. Двухэтажный коттедж 2024 года постройки. Свободная планировка. Мокрые точки на каждом этаже. Большие витражные панорамные окна в кухне-гостиной.. Вода - скважина, канализация - септик и переливная яма, газ - газовый котел Вахi (Италия). Высота потолков первого этажа 3,25 м. Высота потолков второго этажа 2,15 м. Выделенная мощность 15 кВт. Стены: керакам, утеплитель, фасадная штукатурка. Крыша: мягкая кровля. Установлены автоматические ворота, калитка, парковка, отмостка. Асфальтированный подъезд к дому. Площадь земельного участка: 6,19 coт. Вид разрешенного использования: СНТ. Участок прямоугольной формы, ровный. Размер 12,6м*49,1м.
Стоимость объекта: 13 990 000 рублей. Без комиссии для покупателя!