Отдельностоящее здание
Белорусская, 99а Показать на карте
Белорусская, 99а Показать на карте
Куйбышевский район, Сухая Самарка
Самара
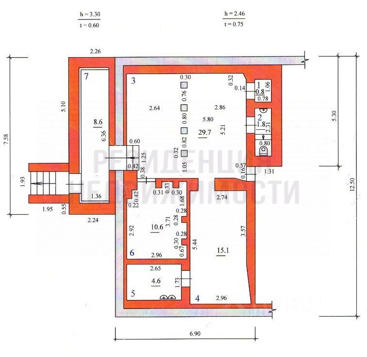
• Адрес: Белорусская, 99а Сухая Самарка, Куйбышевский район. • Общая площадь: 1463,8 кв.м. + земельный участок 956 кв.м. • Двухэтажное здание + подземный этаж. • 7 отдельных входов. • Назначение здания, где располагается помещение нежилое. • Месторасположение: Здание находится на первой линии. • Окна выходят на улицу и во двор. • Возможность разгрузки грузовых машин. • Место под рекламу на фасаде помещения. • Высота потолков: до 3м. • Наличие пожарной сигнализации. • Свободная планировка, на колоннах. • Выделенная мощность: 80 кВт, центральные коммуникации. • В этом здании располагается сетевой арендатор Чижик, который уже даёт стабильный арендный поток. • Здание в отличном техническом состоянии, фасад не нуждается в косметическом ремонте. Перспективный активно застраивающийся район • Асфальтированная парковка вокруг здания. • Возможное использование: Арендный бизнес, офисный центр, торговая площадь, ресторан/кафе/общепит и т.д. • Услуги для Покупателя бесплатны.Направьте нам параметры требуемого помещения и мы отправим Вам подходящие предложения, в том числе те, которых ещё нет в рекламе.Для этого свяжитесь с нами, удобным для Вас образом.
1463 м2
- Показать контакты
- Добавить в избранное
1463 м2
100 000 000
68 315 /м2
