3-к, Степана Разина, 150 Показать на карте
Самарский район, Площадь Революции
Самара
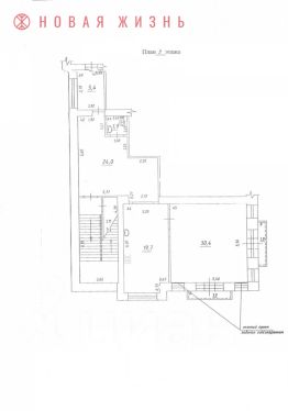
Идеальное предложение для тех, кто ищет комфортное жилье в самом сердце города! Срочно продается квартира в отличном состоянии, которая станет вашим уютным домом. Просторная кухня-гостиная с кабинетом создаст идеальные условия для семейных встреч и работы. Три изолированные спальни обеспечат личное пространство для каждого члена семьи. Два современных санузла и большая кладовка в коридоре добавляют удобства и функциональности. Наслаждайтесь красивыми видами на набережную Волги — все окна выходят именно на нее! В квартире остается кухонный гарнитур со встроенной техникой, что сделает вашу жизнь еще комфортнее. Без долгов и обременений, возможен торг для серьезных покупателей. Не упустите шанс стать обладателем этого замечательного жилья в центре города!
120 м2
3 / 12 этаж
Кирпич - монолит
- Показать контакты
- Добавить в избранное
120 м2
3 / 12 этаж
Кирпич - монолит
23 000 000
190 555 /м2
