3-к, Осипенко, 134 Показать на карте
Московская, 13 мин
Самара
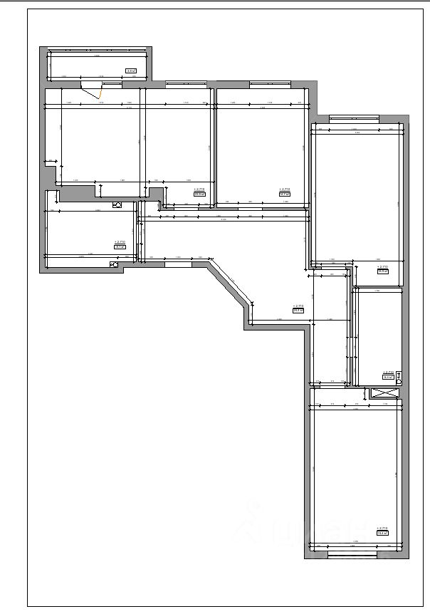
Арт. 94327279. Продаётся просторная 3-комнатная квартира в центре (Ленинский район) / Узаконенная перепланировка/ на две стороныРядом 3 топ-школы (25, 132, 148)!!комнаты квадратной формы, каждая свободно вмещает спальный гарнитур, подходит для семьи с двумя детьми,Кухня 10.7, раздельный санузел, балкон.Узаконенная перепланировка, совмещены лоджии все изменения в БТИ, документы в порядке. Можно не беспокоиться о законности, в собственности более 10 лет, без долгов и обременений.Квартира ориентирована на две стороны отличная инсоляция, сквозное проветривание. Из окон прекрасный вид на город.Заменены окна (современные стеклопакеты), радиаторы отопления Полностью заменены коммуникации в ванной (+ в ванной и туалете качественная плитка).Идеальный вариант для семьи из 4 человек. Детские сады, школы, кружки всё рядом. До набережной 15 минут пешком, метро Алабинская, ТЦ Айсберг, все магазины, любой транспорт.Звоните, показываю в удобное время. Документы готовы. #Самара #ЛенинскийРайон #Алабинская #трехкомнатная #квартираВЦентре #узаконеннаяПерепланировка #большиеКомнаты #семейнаяКвартира #тихийРайон #всеРядом #Осипенко #Новосадовая #проспектЛенина #Коммунистическая #Дачная #Чернореченская #Владимирская #Мичурина #авито #продажаКвартиры
81 м2
7 / 9 этаж
Панель
- Показать контакты
- Добавить в избранное
81 м2
7 / 9 этаж
Панель
9 490 000
116 585 /м2
