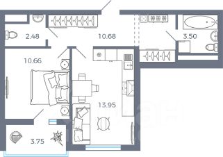
2-к, Николаевский проспект Показать на карте
Придорожный
Практически все квартиры выполняются как в базовой так и в чистовой отделке. Мы предлагаем полностью готовые к проживанию квартиры — квартиры с чистовой отделкой. Это идеальное решение, если вы не планируете тратить время на ремонт, а хотите сразу приступить к меблировке. Вы экономите деньги. Нет необходимости откладывать дополнительные средства на финишную отделку, вы оформляете ипотеку на общую стоимость квартиры. Вы экономите время. За управление ремонтом отвечает наша служба контроля качества. Вам не потребуется тратить время на закупку и поиск строительных материалов. Вы получаете комфорт. Вам не надо контролировать выполнение работ и решать спорные вопросы. Вместо этого вас ждут тихие и уютные семейные вечера и приятные хлопоты по обустройству уже готовой квартиры. Для получения подробной информации о чистовой отделке данной квартиры обратитесь в отдел продаж Южного города
70 м2
1 / 16 этаж
Панель
- Показать контакты
- Добавить в избранное
70 м2
1 / 16 этаж
Панель
8 291 399
116 830 /м2
Новостройка,
III-2027
III-2027
