сдам торговые площади, Ташкентская, 121271 440 ₽ в месяц
20 фев
Дата публикации объявления
Обн. вчера
Дата обновления объявления
3
Количество просмотров (+ просмотры за сегодня)
600 ₽/м² в месяц
Параметры
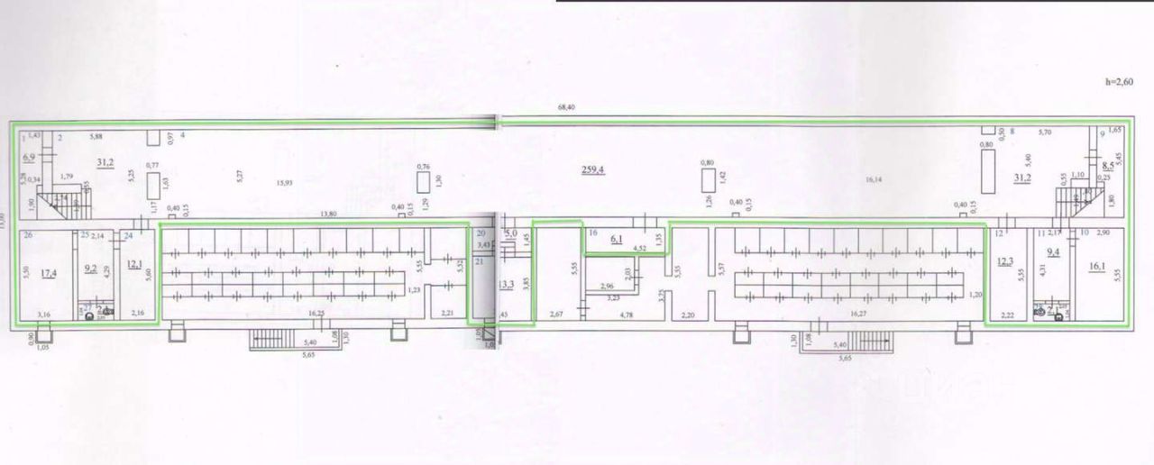
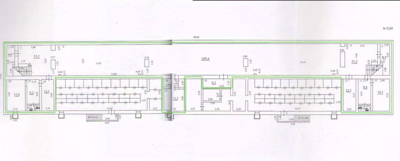
Общая площадь452,4 м2
ЭтажПодвал
Отдельный входесть
Нежилое помещение, занимающее весь этаж дома на первой линии ул. Победы. Высокий транспортный и пешеходный трафик. В ближайшем окружении находятся ТРК ''Вива Лэнд'', площадь Кирова, ДК им. Литвинова, остановки общественного транспорта городских и пригородных маршрутов. Первый этаж дома занимают коммерческие помещения, арендованные стабильными долгосрочными организациями, привлекающими большое число потенциальных покупателей.
Помещение имеет два отдельных входа, один из которых используется как центральный, а второй служит для погрузки/разгрузки товара. Свободная торговая планировка, качественный ремонт, городские коммуникации, высота потолка 2,6 кв. м. В помещении смонтирована система кондиционирования, имеются выделенные поверхности для вывесок на фасаде.
Нежилое помещение, занимающее весь этаж дома на первой линии ул. Победы. Высокий транспортный и пешеходный трафик. В ближайшем окружении находятся ТРК ''Вива Лэнд'', площадь Кирова, ДК им. Литвинова, остановки общественного транспорта городских и пригородных маршрутов. Первый этаж дома занимают коммерческие помещения, арендованные стабильными долгосрочными организациями, привлекающими большое число потенциальных покупателей.
Помещение имеет два отдельных входа, один из которых используется как центральный, а второй служит для погрузки/разгрузки товара. Свободная торговая планировка, качественный ремонт, городские коммуникации, высота потолка 2,6 кв. м. В помещении смонтирована система кондиционирования, имеются выделенные поверхности для вывесок на фасаде.
Помещение универсальное, подойдет под любой вид коммерческой деятельности.