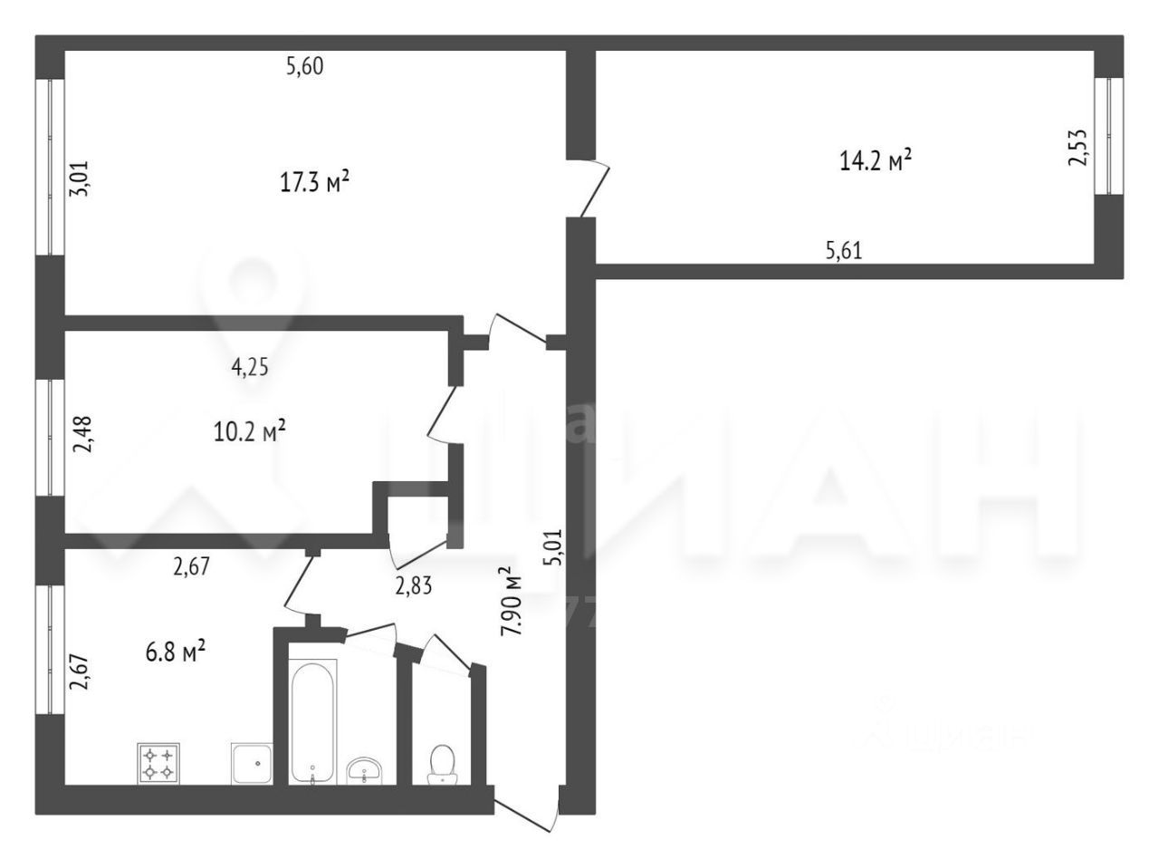
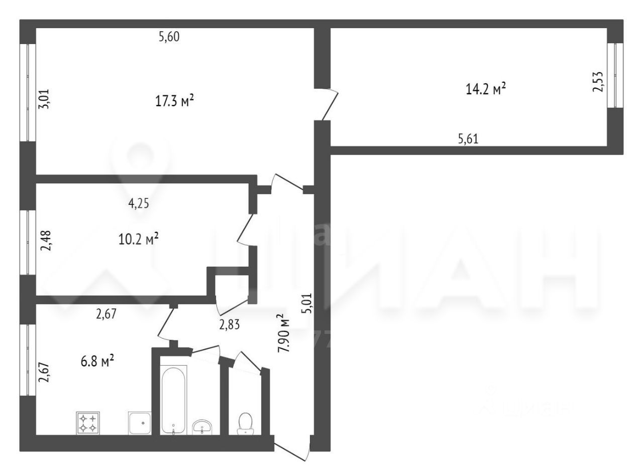
Продается трехкомнатная квартира. Адрес: г. Нефтегорск , улица Пионерская дом 6, гмикрорайон.
Квартира расположена на 5/5 этаже. Общая площадь : 60,3 кв. м.
Просторные комнаты с удобной планировкой, санузел раздельный . Окна пластиковые выходят на две стороны, балкон застеклен пластиком.
В шаговой доступности: школа 3, детский сад 2, сетевые магазины и аптеки.
два взрослых собственника , объект без обременений.
По всем дополнительным вопросам обращаться по телефону: Наталья













