Если цена в объявлении изменится, мы сразу сообщим вам об этом на электронную почту.
Нажимая «Подписаться», вы соглашаетесь с правилами.
продам 3-к, Советской Армии, 839 800 000 ₽
17 янв
Дата публикации объявления
Обн. 18 апр
Дата обновления объявления
1
Количество просмотров (+ просмотры за сегодня)
120 098 ₽/м²
Чистая продажа
Термин "Чистая продажа" означает, что в квартире никто не прописан или
есть куда выписаться и вывезти вещи. Это лучший вариант для покупателя.
Вероятность срыва сделки минимальна.
Квартира
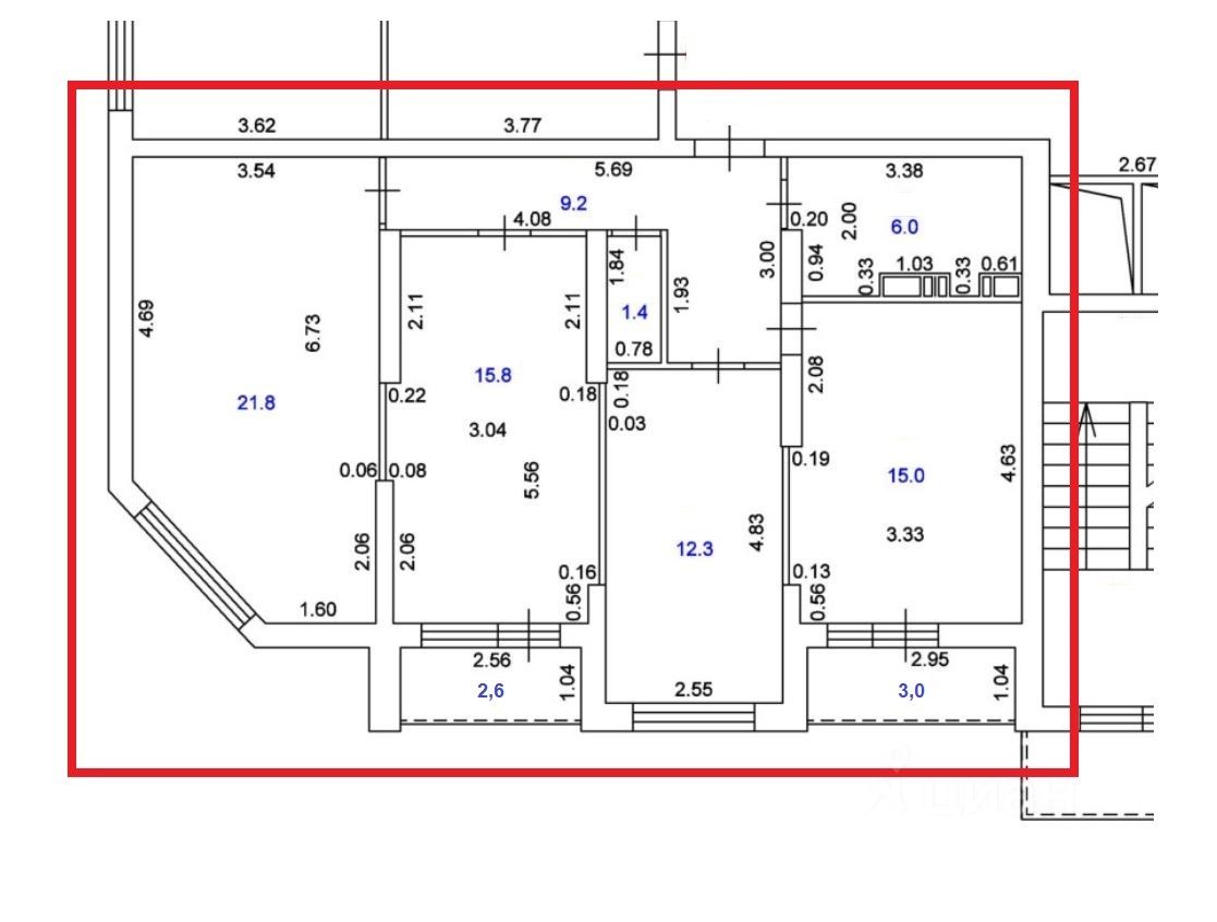
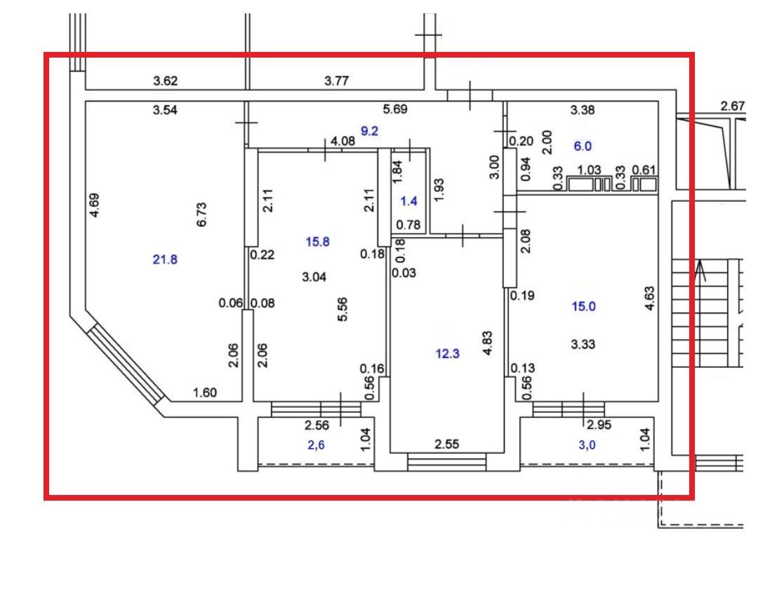
Общая площадь81,6 м2
Жилая площадь50 м2
Кухня15 м2
Количество лоджий2
Тип собственностисвидетельство о праве собственности
Продаётся от юридического лица трехкомнатная квартира площадью 81,6 квадратных метров (с двумя лоджиями 87,2 кв.м.) на 13-м этаже монолитного дома новой постройки (2025 год) ЖК Унисон в развитом районе города Самары. Адрес объекта: улица Советской Армии, 91 / Кабельный переулок, 6. Здание граничит с зоной отдыха - парком Дружба.
Площадь квартиры 81,6 квадратных метров (без учета лоджий) Комнаты 21,8, 15,8 и 12,3 кв.м., кухня 15 кв.м., ванная 6 кв.м., прихожая 9,2 кв.м.
В доме находится подземный двух-уровневый паркинг. Три скоростных бесшумных лифта два пассажирских и один грузовой. Квартира без предварительного ремонта.
Вид из окон во двор и на парк. Никто в квартире не зарегистрирован.
Продаётся от юридического лица трехкомнатная квартира площадью 81,6 квадратных метров (с двумя лоджиями 87,2 кв.м.) на 13-м этаже монолитного дома новой постройки (2025 год) ЖК Унисон в развитом районе города Самары. Адрес объекта: улица Советской Армии, 91 / Кабельный переулок, 6. Здание граничит с зоной отдыха - парком Дружба.
Площадь квартиры 81,6 квадратных метров (без учета лоджий) Комнаты 21,8, 15,8 и 12,3 кв.м., кухня 15 кв.м., ванная 6 кв.м., прихожая 9,2 кв.м.
В доме находится подземный двух-уровневый паркинг. Три скоростных бесшумных лифта два пассажирских и один грузовой. Квартира без предварительного ремонта.
Вид из окон во двор и на парк. Никто в квартире не зарегистрирован. Квартира без обременений.