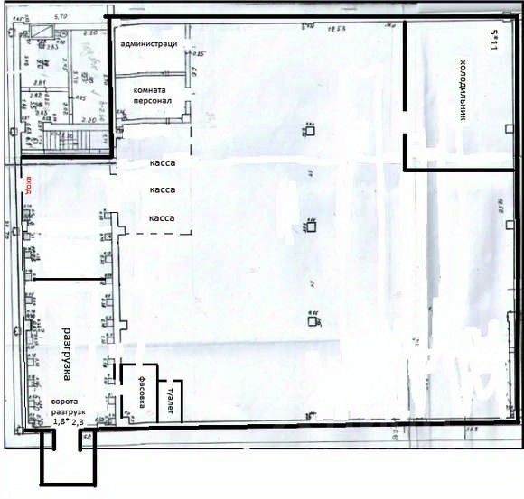
Продается готовый арендный бизнес с федеральным арендатором Светофор. Место расположение объекта в оживленном участке города, где расположены все основные магазины, административные здания, автобусные остановки. Что обеспечивает постоянный трафик клиентов к данному объекту. Здание капитальное, стены выполнены из кирпича. Все сети центральные: водоснабжение, водоотведение, отопление (установлен газовый котел), электросети. Выделенная электрическая мощность составляет 45 кВт. Объект расположен на арендуемом земельном участке. Перед зданием есть парковка для автотранспорта. Договор с арендатором заключен в 2019 году на 15 лет. Магазин на данный момент уже стабильно торгует и платит 2% с товарооборота.
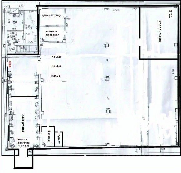
Продается готовый арендный бизнес с федеральным арендатором Светофор. Место расположение объекта в оживленном участке города, где расположены все основные магазины, административные здания, автобусные остановки. Что обеспечивает постоянный трафик клиентов к данному объекту. Здание капитальное, стены выполнены из кирпича. Все сети центральные: водоснабжение, водоотведение, отопление (установлен газовый котел), электросети. Выделенная электрическая мощность составляет 45 кВт. Объект расположен на арендуемом земельном участке. Перед зданием есть парковка для автотранспорта. Договор с арендатором заключен в 2019 году на 15 лет. Магазин на данный момент уже стабильно торгует и платит 2% с товарооборота.
Нажмите на , чтобы не потерять это предложение и первым узнать о снижении цены.
ЗВОНИТЕ!!! С удовольствием ответим на все Ваши вопросы.