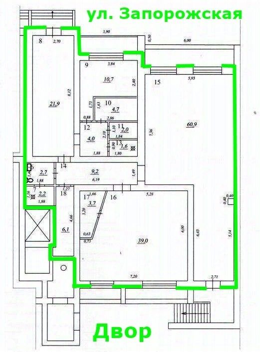
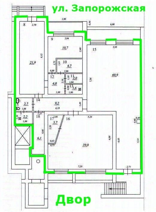
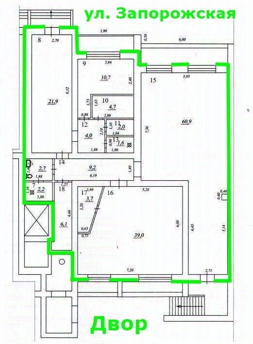
Продается офисное помещение. Объект расположен на перекрестке улиц Дыбенко и Запорожской. Объект отлично видно с улицы Запорожская.
Помещение офисной планировки. Две входных группы: первая со стороны ул. Запорожская, вторая со двора. Внутри выполнен чистовой ремонт на полу плитка и гомогенный линолеум, стены окрашены, потолок ''Армстронг'', 4 мокрых точки, 4 кондиционера, установлена система ОПС и видеонаблюдения.
Рядом с объектом находятся: сеть магазинов ''Пятерочка'' и ''Магнит косметик'', пункты выдачи, магазин ''Дом сантехники'', рынок ''Муравейник'' и т.д.


















