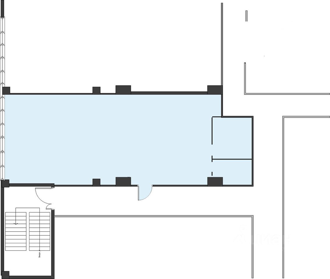
Арендная плата 61000 до сентября, с 01 сентября 71500, минимальный срок аренды 11 месяцев.
5 Просека 99, ЖК Надежда,
Сдаю в аренду помещение на 2 этаже, общая площадь 110 кв.м., ремонт, 1 большой зал (часть отделена под раздевалку), санузел на этаже на 2х арендаторов. Подойдет под: танцевальную студию, спортзал, фитнес и т.д.
61000 +коммунальные услуги, залог 71500
Без комиссии.








