Если цена в объявлении изменится, мы сразу сообщим вам об этом на электронную почту.
Нажимая «Подписаться», вы соглашаетесь с правилами.
продам коттедж, Садовый Массив, 8612 000 000 ₽
22 июля 2025
Дата публикации объявления
Обн. 30 апр
Дата обновления объявления
9
Количество просмотров (+ просмотры за сегодня)
97 009 ₽/м²
Чистая продажа
Термин "Чистая продажа" означает, что в квартире никто не прописан или
есть куда выписаться и вывезти вещи. Это лучший вариант для покупателя.
Вероятность срыва сделки минимальна.
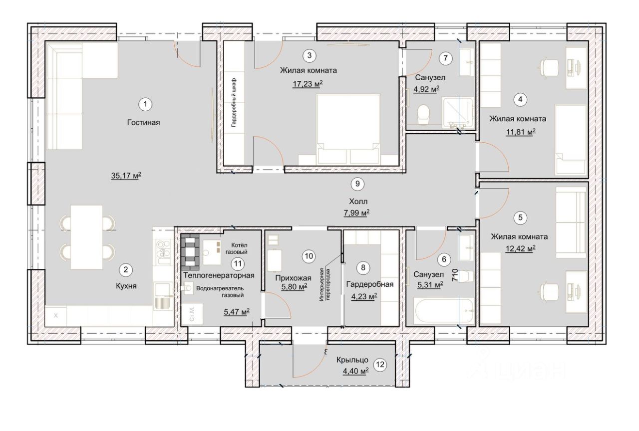
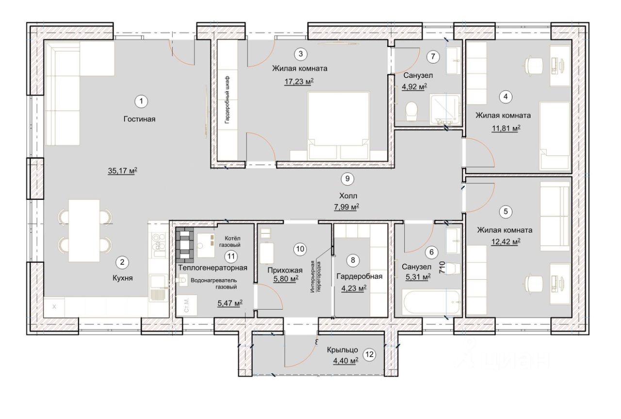
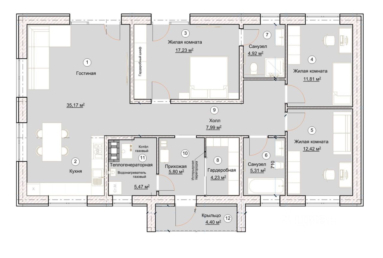
Этажей1
Площадь участка11,6 соток
Общая площадь123,7 м2
Материал домабетонные блоки
ЭлектричествоЕсть
Газоснабжениецентральное
ЭКСКЛЮЗИВНОЕ ПРЕДЛОЖЕНИЕ У ВОЛГИ
Идеальное расположение:Всего 300 метров до берега Волги (5 минут пешком) — наслаждайтесь близостью к воде в любое время года! Участок надежно защищен от ветров лесопосадкой, что создает особый микроклимат и комфорт.
ЭКСКЛЮЗИВНОЕ ПРЕДЛОЖЕНИЕ У ВОЛГИ
Идеальное расположение:Всего 300 метров до берега Волги (5 минут пешком) — наслаждайтесь близостью к воде в любое время года! Участок надежно защищен от ветров лесопосадкой, что создает особый микроклимат и комфорт.
Участок и благоустройство:
Качественный забор по всему периметру на ленточном фундаменте Завезен плодородный чернозем слоем 50 см — готовый участок для ландшафтного дизайна Входная группа: современная дверь с терморазрывом (энергосбережение и комфорт) Инженерные коммуникации:
Электричество: подключено и заведено в дом Газ: технические условия получены, вывод соска выполнен напротив котельной — полная готовность к подключению Водоснабжение: артезианская скважина глубиной 54 м (на 3 дома) — чистейшая вода Канализация: выгребная яма объемом 5 м (глубина 5 м, усиленная горловина, дошли до песчаного слоя) Конструктив дома:
Стены: блок 400 мм + утеплитель (минеральная вата 100 мм) Отличная теплоизоляция и долговечность конструкции Условия покупки:
Рассмотрите вариант trade-in (обмен на ваше жилье) Возможна рассрочка платежа Идеальный вариант для тех, кто ценит уединение, близость к природе и комфорт современной загородной жизни!