сдам универсальное помещение, Советская, 3500 000 ₽ в месяц
17 июня 2025
Дата публикации объявления
Обн. вчера
Дата обновления объявления
631 ₽/м² в месяц
Параметры
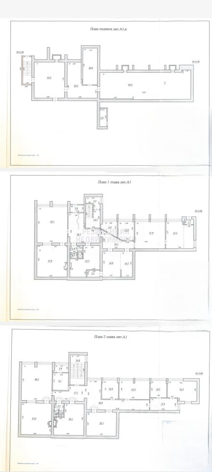
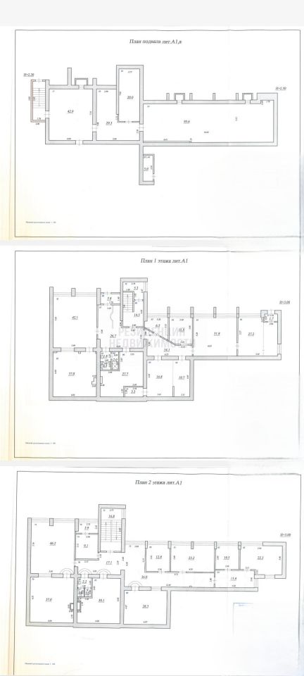
Общая площадь792 м2
Этаж1
Арт. 98649022 Аренда коммерческой недвижимости — 792 кв. м Предлагаем в аренду просторное коммерческое помещение площадью 792 квадратных метра с качественной отделкой типа White Box. Помещение идеально подойдет для различных видов бизнеса, особенно медицинского назначения благодаря современным коммуникациям и инфраструктуре.
Основные характеристики: Площадь: 792 кв.
Арт. 98649022 Аренда коммерческой недвижимости — 792 кв. м Предлагаем в аренду просторное коммерческое помещение площадью 792 квадратных метра с качественной отделкой типа White Box. Помещение идеально подойдет для различных видов бизнеса, особенно медицинского назначения благодаря современным коммуникациям и инфраструктуре.
Основные характеристики: Площадь: 792 кв. м Тип отделки: Вайт-бокс (чистовая отделка) Система планировки: Кабинетная (разделение на отдельные помещения) Электричество: Напряжение до 80 кВт Коммуникации: Все инженерные системы новые и готовы к эксплуатации Преимущества: Просторное помещение позволяет организовать несколько функциональных зон: кабинеты врачей, диагностические зоны, процедурные комнаты и административные офисы. Современный ремонт обеспечит комфортную работу сотрудников и клиентов. Возможность быстрой адаптации пространства под нужды арендатора. Удобное расположение с хорошей транспортной доступностью. Помещение идеально подходит для медицинских центров, стоматологических клиник, лабораторий и других организаций, связанных с медициной и здоровьем. Также возможно использование под другие виды бизнеса, требующие просторных помещений с качественными коммуникациями.