Представляю проект дома Таймыр, для строительства на участке 9.5 соток.
Участок ровный, правильной формы.
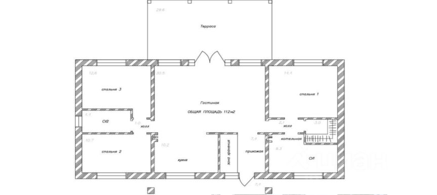
В доме: две детских спальни, МАСТЕР-СПАЛЬНЯ для родителей.
Просторная гостиная со вторым светом и кухня.
Большой санузел, прихожая, второй выход на террасу.
Цена дома указана за черновую отделку.
Стоимость участка от 110 000 рублей за сотку.
Газ по границе участка.
Строительство террас, беседок и бань
Застройщик аккредитован в ведущих банках.
Все ипотечные сделки проходят через ЭСКРОУ- счет, это обезопасит покупателей.
Возможна покупка под сельскую ипотеку 3%, семейную и IT ипотеку 6%.
Trade-In.



