Арт. 67834588 Здание в составе ЖК'' Маяковский New'' по адресу:
Самарская область, г.Самара, Ленинский район, ул.Ленинская, 264
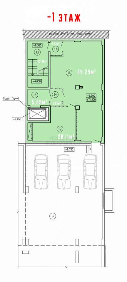
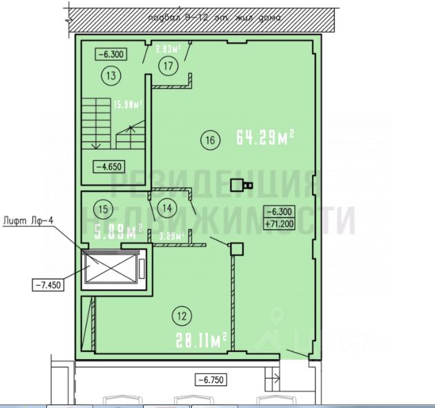
здание площадью 673,72 кв.м.
первая линия по ул.Ленинской
в 50 метрах - перекресток с ул.Маяковского
3 этажа наземных +2 этажа подземных
лифт с -2 го до 3 этажа
парковка и подземный паркинг
свободная планировка
черновая отделка
мощность сети 120 кВт
СРОК СДАЧИ 15 июля 2024 года.
Готовы ответить на все вопросы!














