Коттедж, Подгорная Показать на карте
Кириллинский
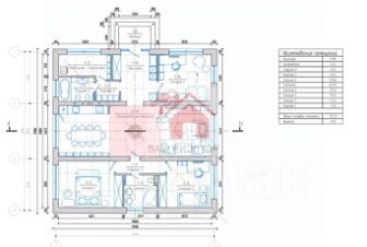
Продаётся двухэтажный коттедж в Красноярском районе пос. Кириллинский на ул. Подгорная. Общая площадь 157,5 кв.м., с земельным участком 15,3 сот.. Материал стен керамзитобетонные блоки + внешнее утепление, перекрытия из железобетонных плит. По проекту, в доме на первом этаже при входе попадаем в прихожую. Кухня и гостиная с камином объединены широким проходом. За счет окон эта часть дома наполнена светом. Здесь же на первом этаже предусмотрен выход в гараж. На втором этаже расположены четыре спальни, гардеробная и выход на балкон. Вместо одной из спален можно сделать большой санузел с окном. Такая планировка является исключительной особенностью загородных домов.На данный момент дом без отделки. Установлены пластиковые окна, электричество подключено и заведено в дом, газ по границе, для воды нужно сделать скважину (всего 15 метров). Рядом находится река Кондурча с пляжем для купания и лес для прогулок. Хорошие соседи. Дом и участок оформлены, право собственности зарегистрировано. Отличное место для жизни и отдыха! Рассматриваются варианты обмена на квартиру в Самаре. Возможен торг. Звоните и приезжайте на просмотр.Новому собственнику в подарок сертификат в Hoff на 50 тысяч рублей! Для наших покупателей БЕСПЛАТНО юридическое сопровождение сделки! Также, если для покупки Вы планируете использовать средства от продажи Вашей недвижимости, мы поможем Вам с продажей!
157 м2
2 этажа
Бетонные блоки
- Показать контакты
- Добавить в избранное
157 м2
2 этажа
Бетонные блоки
11 500 000
73 016 /м2
