3-к, Советская, 4 Показать на карте
Кировский район, Металлург
Самара
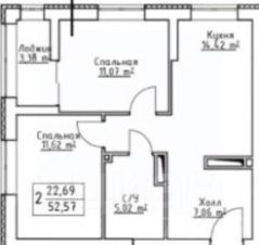
Не единственное жилье у собственника-эффект Долиной исключен Продается 3-комнатная квартира в Кировском районе. Отличное предложение по цене и состоянию! Все, что на фото (техника и мебель) входит в стоимость! Пустая, готовая к продаже! Раздельные комнаты — идеальное пространство для семьи. Санузел раздельный, в плитке — всё готово к проживанию. Кухня с газовой плитой и духовкой, стиральной машинкой— остаются покупателю. Большая застекленная лоджия — дополнительное пространство для хранения Пластиковые окна, бойлер для воды, кондиционеры с очисткой поступающего воздуха из вне — комфорт круглый год. Подходит под ипотеку, быстрый выход на сделку, торг В собственности с 2001 года, один собственник.Видеодомофон и вневедомственная охрана. Школа , детсад, парковка и детская площадка
69 м2
3 / 9 этаж
Панель
- Показать контакты
- Добавить в избранное
69 м2
3 / 9 этаж
Панель
9 100 000
131 884 /м2
